DIRECTOR_3_11zon

DIRECTOR DE PROYECTO

Arq. Juan Pablo Dorado Martínez​

OBRA TIPO_4_11zon

TIPO DE OBRA

Estudios, Diseños Y Obra

AÑO_1

AÑO

2017

AREA_2_11zon

ÁREA DE INTERVENCIÓN

377 m2

TIEMPO_6_11zon

EJECUCIÓN

3 Meses diseños

6 Meses Obra

ARQU RESI

EQUIPO DE TRABAJO

Director de estudios y diseños:
Arq. Juan Pablo Dorado Martínez
Coordinador de Estudios y Diseños / Residente de Obra:
Arq. Tomás Botero Medina
Equipo de trabajo:
Arq. Daniel Vanegas / Arq. Katerine Cuartas
Residente de Obra:
Arq. Jorge Omar Taborda Uchima
Asesor Estructural:
Ing. Jorge Obed Gómez López

about-us-pen.png
LO REALIZADO

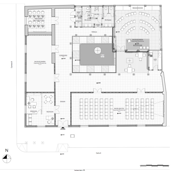
Cultura Francisco de Paula Santander [ Villa del Rosario ]

Construida hace más de 140 años, fue una de las primeras casonas levantadas en lo que hoy es Villa del Rosario, después del Terremoto que devastó la Villa antigua

Se propuso reconfigurar los muros colapsados, utilizando los mismos materiales y sistemas constructivos que tenía la casona, valorando su historia, reconfigurando la tipología original pero adaptandola a las nuevas necesidades para cumplir con el programa arquitectónico, sin afectar la autenticidad expresiva de las intervenciones, al emplear materiales y técnicas constructivas diferentes pero conservando a simple vista la unidad arquitectónica.

Galería de imágenes

Aqui encontrarás imagenes de nuestro proyecto

Back to list

Related Projects