ANÁLISIS, PLANTEAMIENTO Y VALORACIÓN DE LAS PROPUESTAS DE ESTACIONAMIENTO PARA EL SISTEMA DE BICICLETAS PÚBLICAS, EN EL MUNICIPIO DE PEREIRA.
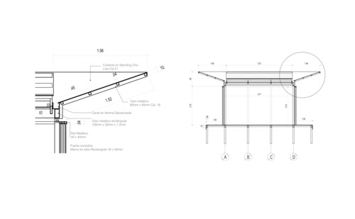
El objetivo principal del proyecto es promover el uso alternativo de sistemas de transporte no motorizado; como medio de transporte, y generar una creciente apropiación del sistema para su completo funcionamiento en la ciudad; haciéndose indispensable para el éxito de este, desarrollar los elementos necesarios para su funcionamiento en el centro de la ciudad en su etapa piloto. Por ello se tiene proyectado que se implanten en el Parque Olaya Herrera, Parque de La Libertad, la Plaza Bolívar y el Parque El Lago. No obstante, dentro del Decreto 625 de 2007, se encuentran dentro del inventario de Bienes Patrimoniales de Conservación Arquitectónica, Histórica y Cultural del Municipio; por lo cual, iniciamos un proceso investigativo de hipótesis y arquetipos de las posibles soluciones que actualmente se han efectuado dentro y fuera del país; con el fin de dichas intervenciones no afecten la integridad de estos espacios urbanos patrimoniales.