JARDÍN ANTIOQUIA

 

DIRECTOR_3_11zon

DIRECTOR DE PROYECTO

Arq Juan Pablo Dorado

OBRA TIPO_4_11zon

TIPO DE OBRA

Estudios y Diseños

AÑO_1

AÑO

2008

ARQU RESI

DISEÑO Y DIBUJO

Arq. Erica Pabón Ortíz
Arq. Cesar Navarro Suarez
Arq. Edward Taba Marín

AREA_2_11zon

ÁREA DE INTERVENCIÓN

780 M2

TIEMPO_6_11zon

EJECUCIÓN

 4 MESES

about-us-pen.png
LO REALIZADO

ESTUDIOS DE DIAGNÓSTICO Y DESARROLLO DEL PROYECTO INTEGRAL DE
RESTAURACIÓN DEL TEATRO MUNICIPAL Jardín Antioquia

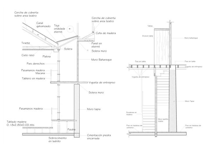
Inmueble declarado monumento nacional de valor arquitectónico, histórico y documental, perteneciente a la tipología arquitectónica típicamente utilizada en el proceso de la colonización Antioqueña, construido originalmente como casa para vivienda unifamiliar en el año de 1913, es intervenido en el año de 1937 con el fin de adecuarlo funcionalmente como el teatro municipal del municipio de jardín Antioquía. El edificio está construido en el primer nivel en muros de tapia pisada, pisos en madera con entrepisos apoyados directamente al terreno, entrepisos en vigas de madera apoyadas a las tapias y pisos en tabla, muros del segundo nivel en bahareque de madera y pañetes emboñigados, estructura de cubierta en cerchas de madera apoyadas a los muros en bahareque y techos en teja de barro. Para la propuesta de restauración se propone restablecer la lectura de la imagen original del edificio, mediante la realización de mínimas intervenciones y el uso de materiales compatibles de alta durabilidad que ayudan a consolidar la estructura.

Además se propuso dar una solución arquitectónica concreta a las funciones culturales que se pretenden desarrollar en el edificio, permitiendo que las circulaciones y puntos fijos no interrumpan el normal desarrollo de los espacios y de la misma forma, generar alternativas espaciales, arquitectónicas y constructivas a través de planteamientos contemporáneos.

Galería de imágenes

Aqui encontrarás imagenes de nuestro proyecto

Back to list

Related Projects